21 Spring Gardens, Edinburgh, EH8 8HU: SOLD

Offers over £799,000

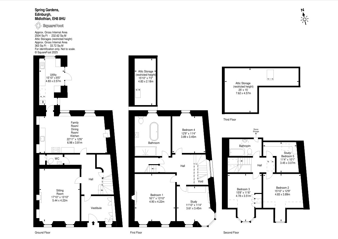
6

2

Detached House

Driveway

Front & Rear Garden

EPC Rating: E

Details

21 Spring Gardens, Edinburgh, EH8 8HU: SOLD
Offers over £799,000
Detached House
Bedrooms: 6
Bathrooms: 2
Front & Rear Garden
Driveway
EPC Rating: E

About this Property

Sold We are delighted to be bringing the wonderful 6 bedroom period family home to the market. This is a rare opportunity to purchase an extremely spacious and much-loved family home. Please give us a call for more details or to request a viewing

Call 0131 526 3097 or text 07743 544 941 to arrange a viewing